Před 90 lety vznikl první pěchotní srub československého opevnění

první pěchotní srub československého opevnění
  • 22.12.2025
  • Richard Maňásek
  • Martin Vaňourek

V pondělí 22. prosince 2025 si připomínáme dokončení betonáže prvního pěchotního srubu československého opevnění, které se začalo budovat od roku 1935 proti připravované agresi nacistického Německa. Byl to pěchotní srub MO-S 8 „Dvůr Paseky“ poblíž Bohumína, dokončený 22. prosince 1935 a od výstavby uplynulo 90. let. 

Přípravné práce k výstavbě opevnění probíhaly od roku 1934, kdy byly zřízeny při Zemském vojenském velitelství v Praze a Brně opevňovací skupiny. Ještě v témže roce skupina vybraných československých důstojníků navštívila objekty francouzské Maginotovy linie. Ještě toho roku, na podzim byl proveden zběžný průzkum terénu a budoucí trasy opevnění severně nad Ostravou, kde v úseku od Bohumína po Šilheřovice bylo navrženo 112 pěchotních srubů a 6 pěchotních tvrzí. Při detailnějším zaměření linie v únoru 1935 došlo k návrhu zvýšit výšky střílen z původní 0,6 m na 1,2 až 1,5 m, což přineslo snížení počtů pěchotních srubů na 48 a zrušení 6 pěchotních tvrzí. 

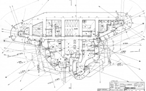
Jako první stavební podúsek v rámci nově vzniklého Ženijního skupinového velitelství II Hlučín byl zadán 1./II. Bohumín a to 17. října 1935 v zadávací částce 5 979 254,16 Kč bez nákladů na cement a železo. Vítěznou firmou, která stavební zakázku získala, byla Dr. Karel Skorkovský, Praha, která se zapíše do historie jako firma s největším podílem na výstavbě těžkého opevnění. První pracovní den byl 23. říjen 1935 a s ohledem na tempo výstavby, betonáž pěchotního srubu MO – S 8 začala 15. prosince a trvala až do 22. prosince 1935. Objem zpracovaného betonu činil 1827 m³ a pěchotní srub byl pro vysoký stav podzemní vody vybudován jako jednopatrový.

Vyzbrojování objektu proběhlo na jaře 1937, kdy byly do objektu instalovány 4 cm protitankové kanóny vz. 36 (zbraň Q) a těžké kulomety vz 37 (zbraň D). Protože se jednalo o tzv. francouzský typ, protitankové kanóny neměly na společné lafetě těžký kulomet vz. 37 (zbraň L1), stejně jako srub ještě postrádal dvojčata těžkých kulometů vz. 37 (zbraň M) a tyto těžké kulomety byly umístěny ve střeleckých místnostech sólo. Do palebného směru, jak vlevo, tak vpravo, působil 1 protitankový kanón a 2 těžké kulomety. Bezprostřední ochranu hlavních střeleckých místností a přístupu k objektu zajišťovaly lehké kulomety vz. 26 (zbraň N). Nedílnou součástí objektu byly dva pancéřové zvony vyzbrojené lehkým kulometem vz. 26 (zbraň N).

Osádku tvořilo 39 mužů, kteří zabezpečovali jak obsluhu všech zbraní, tak technického vybavení pěchotního srubu, jako byl dieselagregát, vzduchotechnika a telefonní spojení prostřednictvím kabelové sítě, která byla v roce 1938 funkční. V září 1938 byl zcela dokončen i překážkový systém a srub vybaven předepsanou zásobou munice a potravin. Velitelem objektu byl v září 1938 čet. dls. Osvald Flaišinger a osádka byla součástí 1. hraničářské roty, jejímž velitelem byl škpt. pěch. Václav Pukl. Linii těžkého opevnění od Bohumína až po Opavu měl bránit hraničářský pluk 4, který vznikl v srpnu 1937 a jehož velitelem byl italský legionář, plk. pěch. Jan Satorie.   

V důsledku Mnichovské konference byl osádkou pěchotní srub vyklizen a odzbrojen, osádka pak objekt opustila 8. října 1938. Po okupaci byly z objektu vytrženy oba pancéřové zvony a obě střílny protitankového kanónu. Na jaře 1945 Wehrmacht připravoval využití objektů jako obrannou linii proti Rudé armádě na přístupových trasách na Moravskou Ostravu, ale k zásadním bojům zde vůbec nedošlo. 

Zajímavostí je osud některých příslušníků 1. hraničářské roty. Její velitel, škpt. pěch. Václav Pukl byl za odbojovou činnost během okupace popraven, por. pěch. Emanuel Šrámek se v roce 1945 probíjel do vlasti jako velitel 3. tankového praporu 1. čs. samostatné tankové brigády a por. pěch. František Ostrý počátkem padesátých let stál za dopisem Velkému metaři, komunistickému funkcionáři, Rudolfu Slánskému, který byl popraven 3. prosince 1952. Ale o těchto osudech někdy příště.

Autor: kpt. Ing. Martin Vaňourek, výkresy poskytl: Zdeněk Komanec